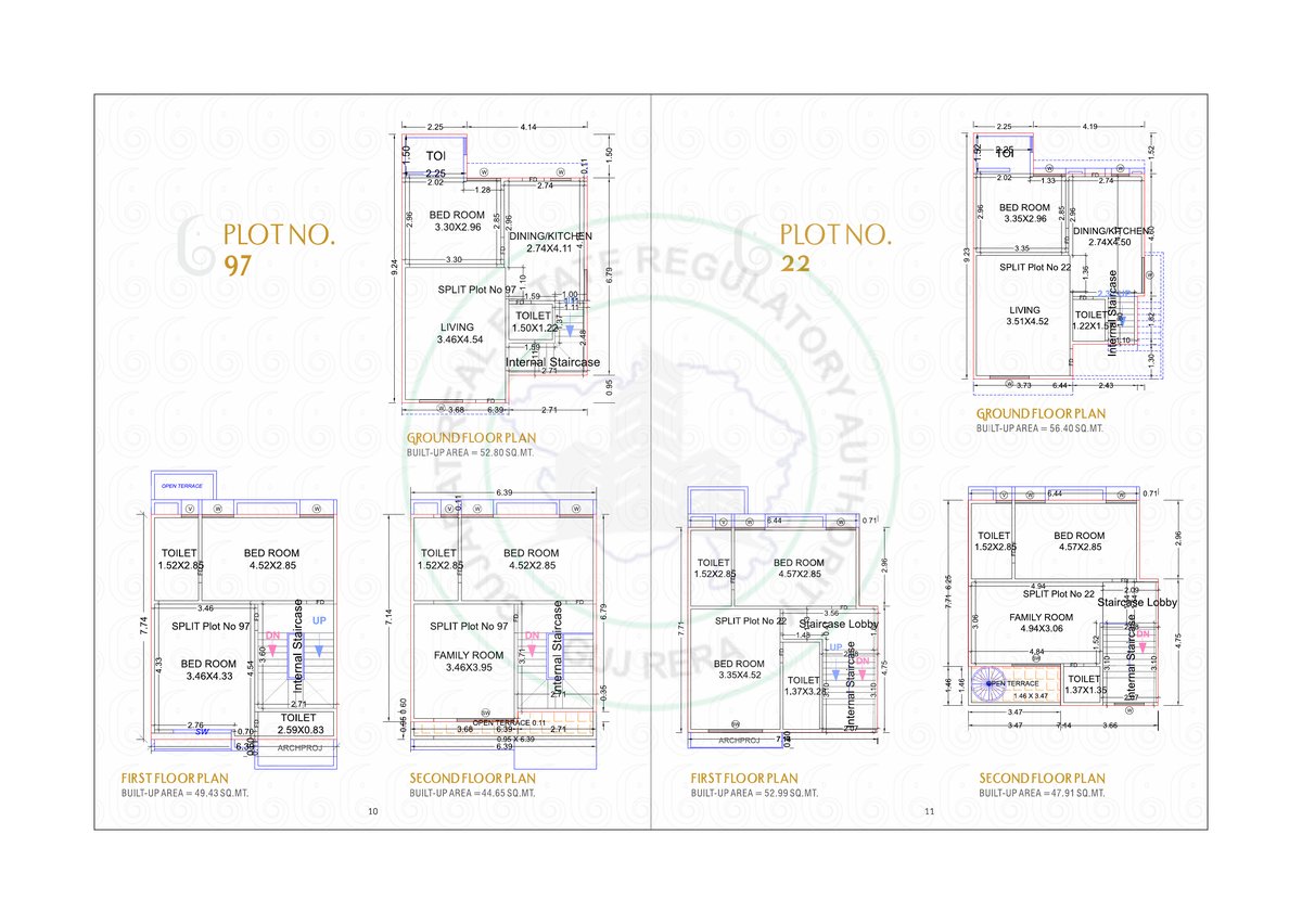
Gajanan Upvan is a residential/group housing real estate project developed by Dhyeyy Realty, strategically located at Gajanan Upvan ,Opp.shyamal Heights, Ankhol, Vadodara , Vadodara, 390019. This RERA-registered property (Registration No: PR/GJ/VADODARA/VADODARA/Vadodara Urban Development Authority/RAA15271/270525/310330). 4b2hk Luxurious Villa
The project is professionally designed by Aditya Ajit Umrajkar and engineered by Chirag Ashokbhai Shah, ensuring quality construction and adherence to all regulatory standards. For more information about this property, interested buyers can contact Dhyeyy Realty directly at 9558035806.











