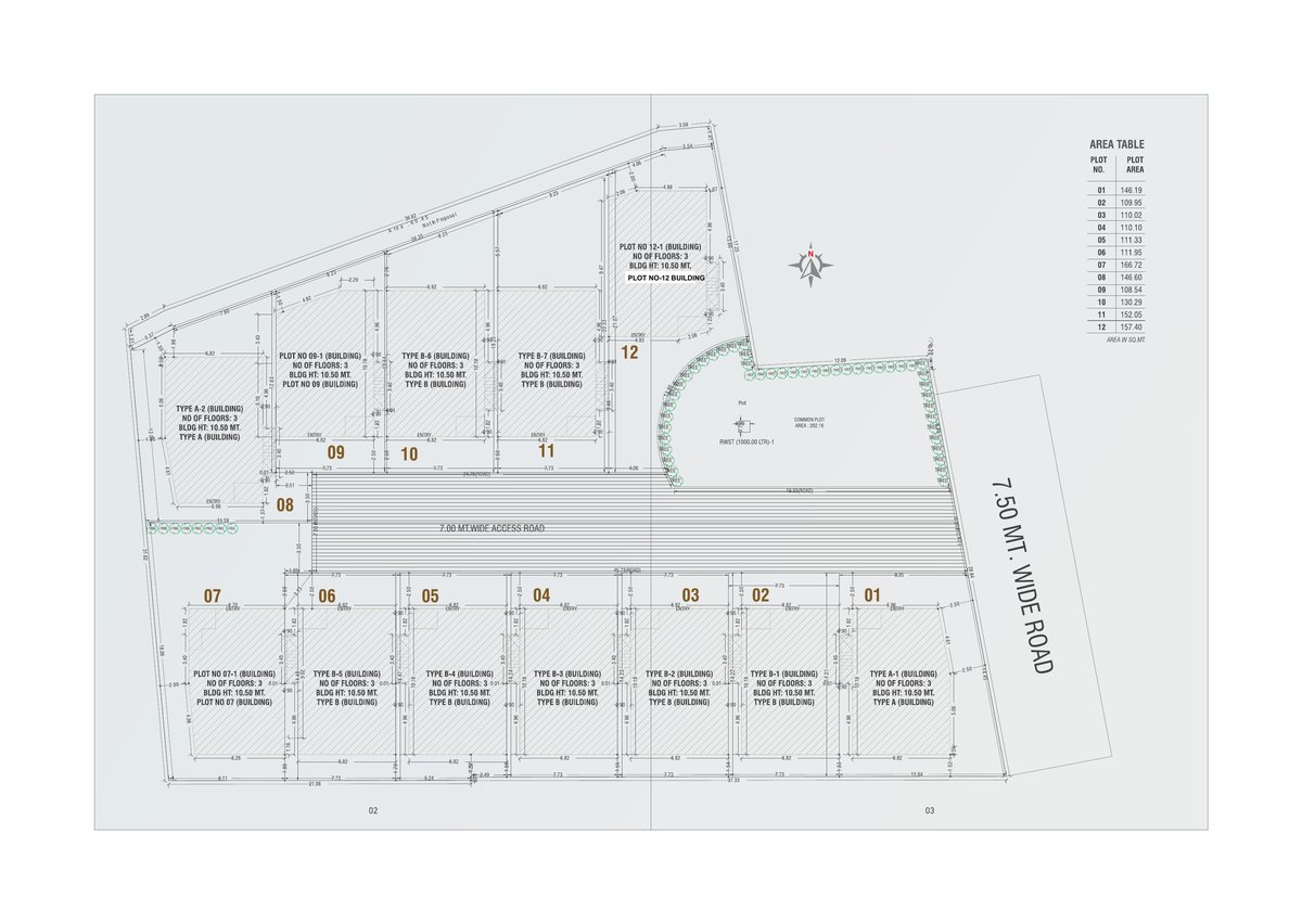
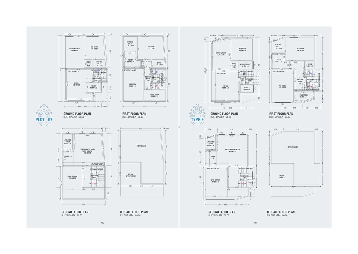
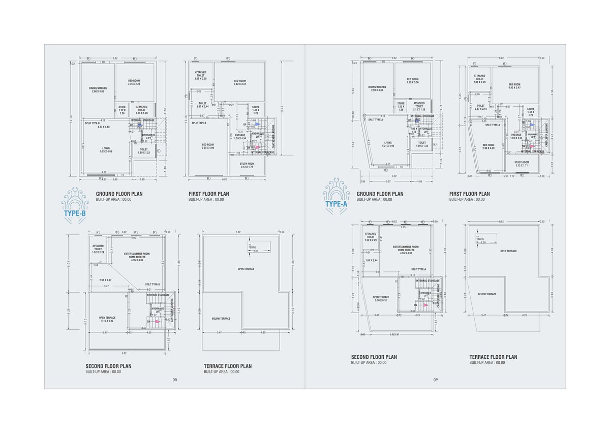
Sai Bungalow is a residential/group housing real estate project developed by Shree Developers, strategically located at F. P. No. -54, T.p. No.-06, R.s. No 184/08, Vadodara, 390006. This RERA-registered property (Registration No: PR/GJ/VADODARA/VADODARA/Vadodara Municipal Corporation/RAA15610/290725/311227). 4 Bhk Premium Bungalows
The project is professionally designed by Rishi Pradyuman Baraiya and engineered by Neel Rameshbhai Patel, ensuring quality construction and adherence to all regulatory standards. For more information about this property, interested buyers can contact Shree Developers directly at 9274311476.







