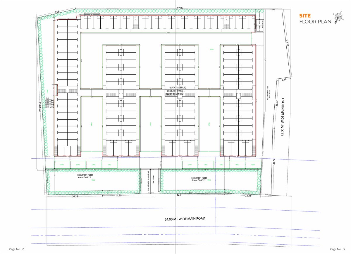
Uday Avenue is a commercial real estate project developed by Uday Enterprise, strategically located at Uday Avenue Beside Karjan Cotton Paschim Vibhag, Opp. Apmc, Nava Bazar, Karjan, Vadodara, 391240. This RERA-registered property (Registration No: PR/GJ/VADODARA/KARJAN/Karjan Area Development Authority/CAA15403/240625/311229). Commercial Project With Total 296 Shops
The project is professionally designed by Darshil Chandrakant Patel and engineered by Kishorbhai Laljibhai Patel, ensuring quality construction and adherence to all regulatory standards. For more information about this property, interested buyers can contact Uday Enterprise directly at 9054176235.





