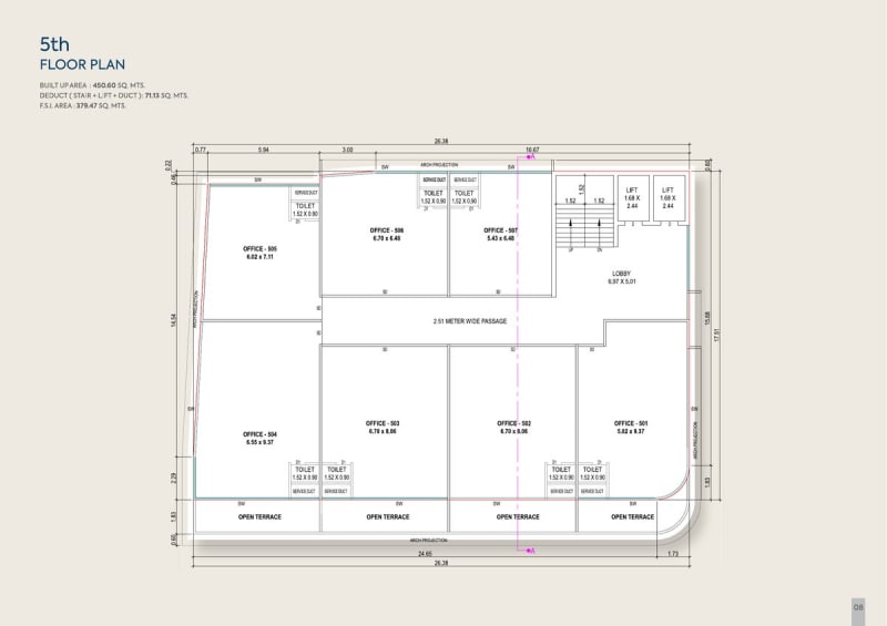
Empire West is a commercial real estate project developed by Empire Developer, strategically located at Empier West ,Opp. Nilamber Primero, Vasna Bhayli Road, Saiyed Vasna, Vadodara, Vadodara, 390007. This RERA-registered property (Registration No: PR/GJ/VADODARA/VADODARA/Vadodara Municipal Corporation/CAA16243/221225/311228). Commercial Project For 43 Units
The project is professionally designed by Shouryakumar Jayeshchandra Patel and engineered by Aashutosh Anilchandra Desai, ensuring quality construction and adherence to all regulatory standards. For more information about this property, interested buyers can contact Empire Developer directly at 8141688666.















