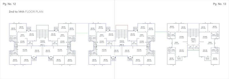
Shivanta Ramam is a mixed development real estate project developed by Matru Chhaya Developers, strategically located at Shivanta Ramam,nr.darbar Chowkdi.bh.l.g. Party Plot,manjalpur,vadodara-3900011, Vadodara, 390011. This RERA-registered property (Registration No: PR/GJ/VADODARA/VADODARA/Vadodara Municipal Corporation/MAA14690/160125/311228). Tower-a+b+c = Total 130 Flat + 25 Shops +1 Hall = Total 156 Units
The project is professionally designed by Dhavalbhai Ashokbhai Rao and engineered by Vinubhai Ratilal Patel, ensuring quality construction and adherence to all regulatory standards. For more information about this property, interested buyers can contact Matru Chhaya Developers directly at 9904134346.










